Добро пожаловать на http://vipplan.ru

Випплан Сатка - это тысячи проектов домов в нашем каталоге!

Вы всегда сможете найти для себя проект дома вашей мечты! Даже если этого не случилось, мы готовы в любую минуту предложить проект индивидуального дома.

Забыли пароль?
Вы еще не регистрировались?

Перейдите по ссылке ниже на страницу регистрации.

Регистрация...

Внимание!!!

В проектную документацию могут быть внесены изменения любой сложности, в соответствии в Вашими пожеланиями!

Полезные статьи

Искусственный камень

Среди современных материалов, особого внимания заслуживает искусственный камень. Естественность и красота натурального камня очевидна. Но нужно реально оценивать свои возможности и присмотреться именно к искусственному камню, так как сам искуственный камень и стоимость производства работ с ним в Сатке значительно дешевле чем натуральный....

Применение ленточных фундаментов

Большинство людей никогда не сталкивались с выбором фундамента, а, столкнувшись, не могут определиться с выбором. Ведущие специалисты в области строительства утверждают, что лучшим типом фундамент - ленточный фундамент. Как показывает статистика, ленточный фундамент очень популярен среди жителей нашей страны. ...

Проекты домов и коттеджей > Каталог проектов домов > Проект дома с мансардой Vg1000

Проект дома с мансардой Vg1000

Проект дома с мансардой
Зарегистрируйтесь

Проект № Vg1000


Техническое описание
Общая площадь: 149.47 м2
Жилая площадь: 90.26 м2
Высота здания: 9.26 м
Размеры дома: 10.94м×9.24м
Кол-во комнат: 4
Цокольный этаж: нет
Гараж: нет
Мансарда: есть

Kонструкция
Фундамент: Монолитный
Перекрытия: Сборные плиты

Архитектурный раздел
Конструктивный раздел
АР+КР - 52 000 (Со скидкой 20%)
Проект индивидуального одноэтажного жилого дома с мансардой размерами здания 10,94 x 9,24 м. Наружная отделка здания : фасадная штукатурка. Фундамент – монолитная ж/б плита под всей площадью дома. Наружные стены: силикатные блоки «Поревит», экструдированный пенополистирол, штукатурка. Внутренние стены - из газобетонных блоков «Поревит». Перегородки силикатные блоки «Поревит». Снаружи вентканалы и дымоходы отделываются клинкерной плиткой. Перемычки – U-образные блоки «Поревит» и сварные из профиля проката. Пол первого этажа - пол по грунту. Пол мансарного этажа — сборные плиты перекрытия. Кровля — битумная черепица. Окна - металлопластиковые, выполненные по индивидуальному заказу.
Генплан застройки участка / Паспорт проекта 7000 руб / 10000 руб
Инженерный раздел (полный) 74500 руб
Смета на строительство 37250 руб
Теплотехнический расчет материалов стен Бесплатно
Стоимость проекта со незначительнми изменениями 61250 руб
Стоимость проекта со средними изменениями* 72500 руб
Стоимость проекта со значительными изменениями** 75400 руб

План первого этажа


Прихожая — 2,16 м2
Холл — 11,15 м2
Гостиная — 25,95 м2
Кухня — 7,82 м2
Кладовая — 3,17 м2
Бойлерная — 6,94 м2
С/у — 4,22 м2
Кабинет — 11,39 м2

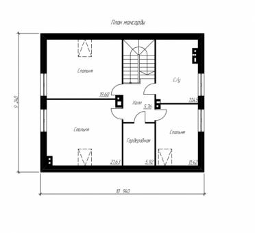
План мансардного этажа


Холл — 5,76 м2
Спальня — 19,60 м2
С/у — 11,49
Спальня — 11,42 м2
Гардеробная — 5,92 м2
Спальня — 21,63 м2
Проект дома с мансардой Проект дома с мансардой Проект дома с мансардой Проект дома с мансардой
Внесение изменений и привязка к участку строительства

В любой из проектов от компании VIPplan - Сатка по вашему желанию могут быть внесены изменения в материалы стен, материалы наружной отделки дома, а также будет произведена адаптация проекта под конкретный регион строительства (с учетом грунтов региона, геологических особенностей вашего участка и местных климатических условий) - БЕСПЛАТНО !!! (кроме проектов со скидкой и проектов наших партнеров).

Любой из проектов, размещенных на сайте satka.vipplan.ru мы можем выполнить из требуемых вам строительных материалов: ячеистый бетон (газобетон, пеноблок), керамоблок, кирпич, шлакоблок, бетонный блок, дерево (брус, клееный брус), каркасная технология (деревянный каркас, металлокаркас (ЛСТК)).

Фасад дома и его наружную отделку так же возможно выполнить с применением различных облицовочных материалов: структурной штукатурки, (с утеплителем и без), сайдингом (пластиковый или металлосайдинг), фиброплитами, кирпича.

 
6 Избранные
проекты

Доставка проектов по России: Москва (Московская область), Санкт-Петербург (Ленинградская область), Краснодар, Ростов-на-Дону, Ставрополь, Сочи, Волгоград, Новосибирск, Белгород, Брянск, Воронеж, Саратов, Хабаровск, Астрахань, Нальчик, Владикавказ, Екатеринбург, Тюмень, Самара, Нижний Новгород, Казань, Пермь, Уфа, Челябинск, Красноярск, Ханты-Мансийск, Иркутск, Курган, Оренбург, Омск, Томск, Барнаул, Новокузнецк, Кемерово, Абакан, Чита, Якутск, Южно-Сахалинск, Петропавловск-Камчатский и страны ближнего зарубежья: Белоруссия, Украина, Казахстан