Добро пожаловать на http://vipplan.ru

Випплан Сатка - это тысячи проектов домов в нашем каталоге!

Вы всегда сможете найти для себя проект дома вашей мечты! Даже если этого не случилось, мы готовы в любую минуту предложить проект индивидуального дома.

Забыли пароль?
Вы еще не регистрировались?

Перейдите по ссылке ниже на страницу регистрации.

Регистрация...

Внимание!!!

В проектную документацию могут быть внесены изменения любой сложности, в соответствии в Вашими пожеланиями!

Полезные статьи

Выбор проекта дома (площадь, этажность - 1 или 2 этажа)

Для того что бы выбрать проект дома, предварительно необходимо определиться, какой будет площадь будущего дома (решение зависит от количества человек, планирующих постоянно в нем проживать), количество спален, санузлов и ванных комнат, компоновка дома, одноэтажный, масардный или двухэтажный дом (зависит от площади участка и предпочтений будущих хозяев) ...

Фундамент под гараж

Обычно фундаменты под гараж делаются из бетонного раствора и заливаются, как монолит. Гаражные фундаменты так же можно укладывать из бетона с применением бутового камня. Такие фундаменты тоже считаются монолитными. В этом случае происходит экономия бетона....

Проекты домов и коттеджей > Каталог проектов домов > Проект одноэтажного дома с мансардой Vg1123

Проект одноэтажного дома с мансардой Vg1123

Проект одноэтажного дома с мансардой
Зарегистрируйтесь

Проект № Vg1123


Техническое описание
Общая площадь: 115.84 м2
Жилая площадь: 64.38 м2
Высота здания: 10 м
Размеры дома: 17м×8м
Кол-во комнат: 5
Цокольный этаж: нет
Гараж: нет
Мансарда: нет

Kонструкция
Фундамент: Ленточный из блоков ФБС
Перекрытия: Ж/б плиты
Материал стен: Газобетон

Архитектурный раздел
Конструктивный раздел
АР+КР - 48 000 (Со скидкой 20%)
Проект индивидуального однотажного жилого дома с мансардой с размерами здания 16,73 x 8,20 м. Наружная отделка здания – облицовочный кирпич. Фундамент – ленточный из блоков ФБС (под несущими стенами). Наружные стены – газобетонные блоки с утеплением экструдированным пенополистиролом с воздушным зазором и облицовочным кирпичом Внутренние стены - газобетонные блоки. Перегородки – газобетонные блоки. Пол первого этажа - пол по грунту. Межэтажное перекрытие-ж/б плиты. Крыша – металлочерепица. Кровля – четырехскатая. Окна - металлопластиковые, выполненные по индивидуальному заказу.
Генплан застройки участка / Паспорт проекта 7000 руб / 10000 руб
Инженерный раздел (полный) 58000 руб
Смета на строительство 29000 руб
Теплотехнический расчет материалов стен Бесплатно
Стоимость проекта со незначительнми изменениями 57100 руб
Стоимость проекта со средними изменениями* 65800 руб
Стоимость проекта со значительными изменениями** 68100 руб

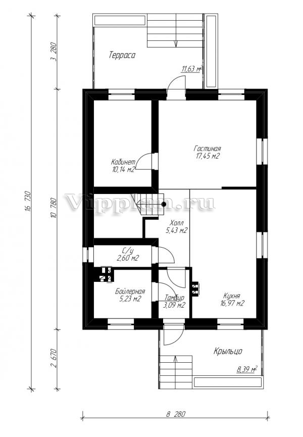
План первого этажа


Тамбур — 3,09 м2
Холл — 5,43 м2
Гостиная — 17,45 м2
Кабинет — 10,14 м2
Кухня — 16,97 м2
С/у — 2,60 м2
Бойлерная — 5,23 м2
Терраса — 11,63 м2
Крыльцо — 8,39 м2

Проект одноэтажного дома с мансардой

Проект одноэтажного дома с мансардой

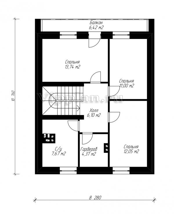
План второго этажа


Холл — 6,10 м2
Спальня — 13,74 м2
Спальня — 11 м2
Спальня — 12,05 м2
Гардероб — 4,37 м2
С/у — 7,67 м2
Балкон — 6,42 м2
Проект одноэтажного дома с мансардой Проект одноэтажного дома с мансардой Проект одноэтажного дома с мансардой Проект одноэтажного дома с мансардой
Внесение изменений и привязка к участку строительства

В любой из проектов от компании VIPplan - Сатка по вашему желанию могут быть внесены изменения в материалы стен, материалы наружной отделки дома, а также будет произведена адаптация проекта под конкретный регион строительства (с учетом грунтов региона, геологических особенностей вашего участка и местных климатических условий) - БЕСПЛАТНО !!! (кроме проектов со скидкой и проектов наших партнеров).

Любой из проектов, размещенных на сайте satka.vipplan.ru мы можем выполнить из требуемых вам строительных материалов: ячеистый бетон (газобетон, пеноблок), керамоблок, кирпич, шлакоблок, бетонный блок, дерево (брус, клееный брус), каркасная технология (деревянный каркас, металлокаркас (ЛСТК)).

Фасад дома и его наружную отделку так же возможно выполнить с применением различных облицовочных материалов: структурной штукатурки, (с утеплителем и без), сайдингом (пластиковый или металлосайдинг), фиброплитами, кирпича.

 
6 Избранные
проекты

Доставка проектов по России: Москва (Московская область), Санкт-Петербург (Ленинградская область), Краснодар, Ростов-на-Дону, Ставрополь, Сочи, Волгоград, Новосибирск, Белгород, Брянск, Воронеж, Саратов, Хабаровск, Астрахань, Нальчик, Владикавказ, Екатеринбург, Тюмень, Самара, Нижний Новгород, Казань, Пермь, Уфа, Челябинск, Красноярск, Ханты-Мансийск, Иркутск, Курган, Оренбург, Омск, Томск, Барнаул, Новокузнецк, Кемерово, Абакан, Чита, Якутск, Южно-Сахалинск, Петропавловск-Камчатский и страны ближнего зарубежья: Белоруссия, Украина, Казахстан